54 St David Street Goderich, Ontario N7A 1L5
$549,000
This triplex is centrally located in Goderich and a great investment opportunity! Situated just one block from the vibrant downtown square, offering access to many local amenities. The building features a versatile mix of units: two 1-bedroom, and one spacious 3-bedroom apartment. Rent includes gas heating and hot water. Each unit is equipped with separate hydro meters paid by tenants. A private triple wide driveway offers 6 vehicle spaces. This building has had extensive renovations completed throughout 2011 & 2012. New shingles, new siding and all windows were replaced in 2011. Most of the building was gutted to the studs and rewired, new drywall, some new plumbing and spray foam insulation took place in 2012. Two of the apartments have laundry. Reach out to your realtor today for more details. (id:36109)
Property Details
| MLS® Number | X12687014 |
| Property Type | Multi-family |
| Community Name | Goderich (Town) |
| Amenities Near By | Park, Beach, Place Of Worship, Hospital |
| Equipment Type | None |
| Features | Carpet Free, Guest Suite, In-law Suite |
| Parking Space Total | 6 |
| Rental Equipment Type | None |
| Structure | Deck, Shed |
Building
| Bathroom Total | 4 |
| Bedrooms Above Ground | 5 |
| Bedrooms Total | 5 |
| Age | 100+ Years |
| Amenities | Separate Electricity Meters |
| Appliances | Water Heater, Dryer, Stove, Two Washers, Refrigerator |
| Basement Development | Unfinished |
| Basement Type | N/a (unfinished) |
| Cooling Type | None |
| Exterior Finish | Vinyl Siding |
| Fire Protection | Smoke Detectors |
| Foundation Type | Stone |
| Half Bath Total | 1 |
| Heating Fuel | Natural Gas |
| Heating Type | Forced Air |
| Stories Total | 2 |
| Size Interior | 2,000 - 2,500 Ft2 |
| Type | Triplex |
| Utility Water | Municipal Water |
Parking
| No Garage |
Land
| Acreage | No |
| Land Amenities | Park, Beach, Place Of Worship, Hospital |
| Sewer | Sanitary Sewer |
| Size Depth | 57 Ft ,9 In |
| Size Frontage | 59 Ft ,9 In |
| Size Irregular | 59.8 X 57.8 Ft ; Irregular |
| Size Total Text | 59.8 X 57.8 Ft ; Irregular |
| Zoning Description | C5 |
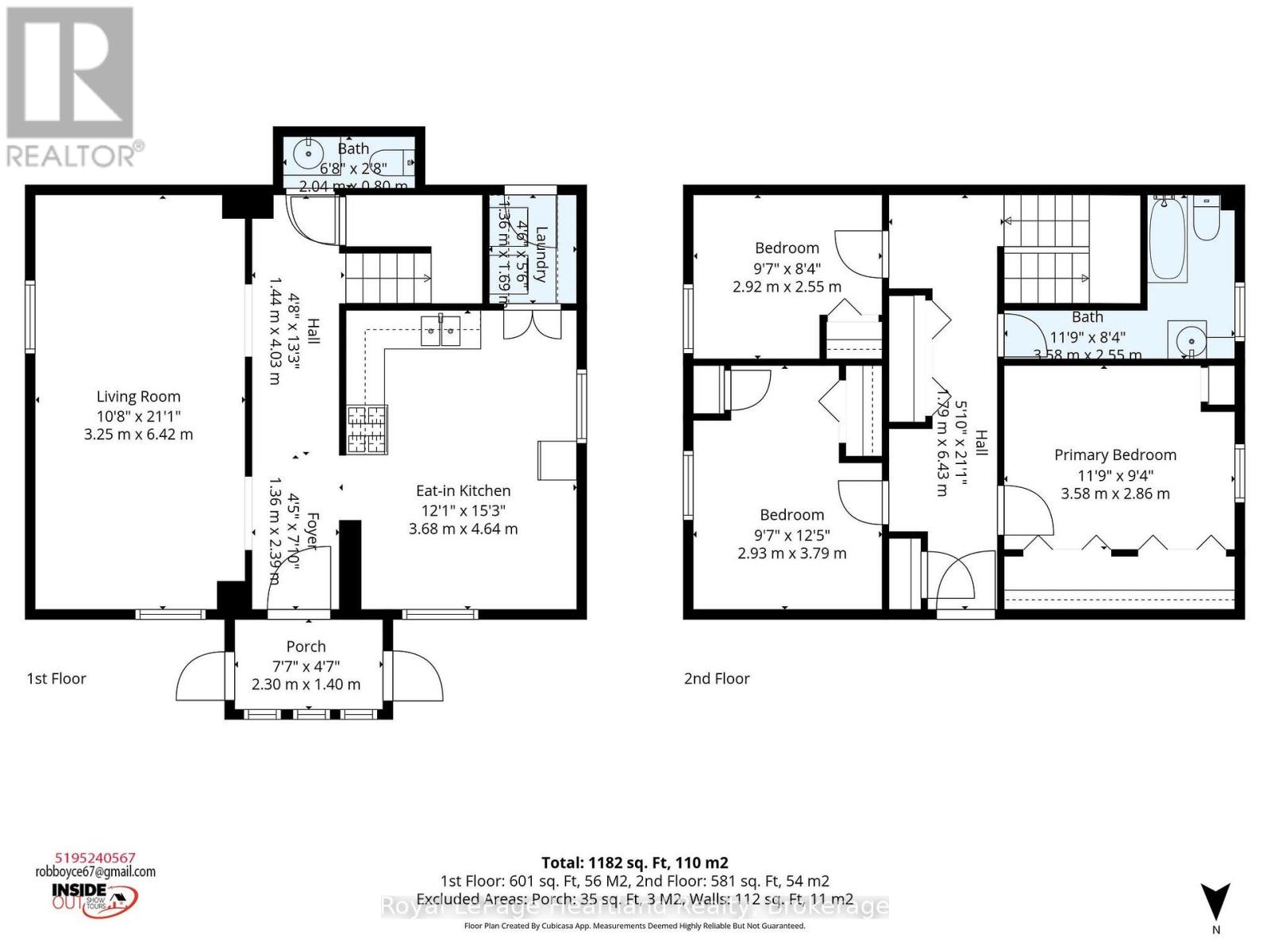
Rooms
| Level | Type | Length | Width | Dimensions |
|---|---|---|---|---|
| Second Level | Kitchen | 3.27 m | 2.91 m | 3.27 m x 2.91 m |
| Second Level | Bedroom | 3.27 m | 3.19 m | 3.27 m x 3.19 m |
| Second Level | Bathroom | 2.57 m | 1.68 m | 2.57 m x 1.68 m |
| Second Level | Family Room | 5.1 m | 3.16 m | 5.1 m x 3.16 m |
| Second Level | Bedroom | 2.92 m | 2.55 m | 2.92 m x 2.55 m |
| Second Level | Bedroom 2 | 2.93 m | 3.79 m | 2.93 m x 3.79 m |
| Second Level | Primary Bedroom | 3.58 m | 2.86 m | 3.58 m x 2.86 m |
| Second Level | Bathroom | 3.58 m | 2.55 m | 3.58 m x 2.55 m |
| Main Level | Kitchen | 3.68 m | 4.64 m | 3.68 m x 4.64 m |
| Main Level | Living Room | 3.25 m | 6.42 m | 3.25 m x 6.42 m |
| Main Level | Foyer | 1.36 m | 2.39 m | 1.36 m x 2.39 m |
| Main Level | Bathroom | 2.04 m | 0.8 m | 2.04 m x 0.8 m |
| Main Level | Laundry Room | 1.36 m | 1.69 m | 1.36 m x 1.69 m |
| Ground Level | Bedroom | 3.26 m | 3.03 m | 3.26 m x 3.03 m |
| Ground Level | Living Room | 4.43 m | 3.95 m | 4.43 m x 3.95 m |
| Ground Level | Office | 2.69 m | 2.16 m | 2.69 m x 2.16 m |
| Ground Level | Foyer | 1.52 m | 1.8 m | 1.52 m x 1.8 m |
| Ground Level | Bathroom | 1.64 m | 2.16 m | 1.64 m x 2.16 m |
| Ground Level | Kitchen | 3.37 m | 3.07 m | 3.37 m x 3.07 m |
Utilities
| Cable | Available |
| Electricity | Installed |
| Sewer | Installed |































